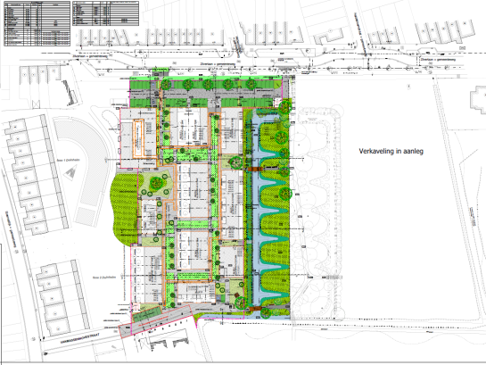
Wat komt er op deze site?
Langs de Zilverlaan, op het stuk tussen de verkaveling Stenehof van Condor en Duinhelm, bouwen we een nieuwe verkaveling met:
- 49 woningen
- 8 appartementen
- groenzone
Van de 49 woningen worden er 11 sociaal verkocht.
Architect: ampe.trybou architecten
Planning
- De riolerings-en infrastructuurwerken werden in de tweede helft van 2025 uitgevoerd door Aannemingen Pennick.
- Vermoedelijk in het voorjaar van 2026 starten de bouwwerken.
Communicatie
- juli 2025 - bewonersbrief start sloopwerken (141.74 KB) "pdf"
Bij de start van de bouwwerken zal de buurt geïnformeerd worden.
Contact
Heb je vragen over de werf? Neem contact met ons op via zilverlaan@woonsprong.be of bel naar 059 70 53 26 (elke werkdag tussen 09.00 en 12.00 uur).