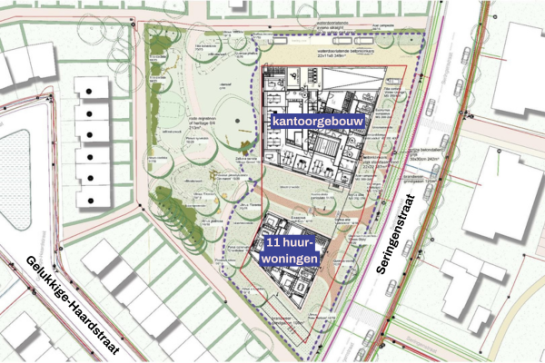
Wat komt er op deze site?
Het oude kantoorgebouw van Woonsprong (Seringenstraat 2) wordt afgebroken. In de plaats komt:
- een kantoorgebouw
- een gebouw met 11 sociale huurwoningen
- een ondergrondse parking met 49 plaatsen
- een groenzone voor de buurt
Planning
- December 2025: aanvraag bouwvergunning
- December 2026: vermoedelijke start werken
- Duur: 2 tot 3 jaar
Communicatie
- 2 december 2025 - vergadering buurtbewoners
Contact
Heb je vragen over de werf? Neem contact met ons op via seringenstraat2@woonsprong.be of bel naar 059 70 53 26 (elke werkdag tussen 09.00 en 12.00 uur).